WOLNE
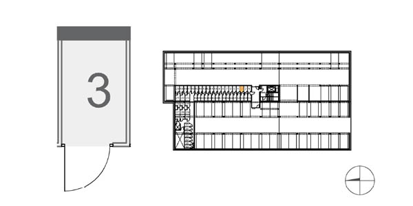
Mieszkanie nr 3
Pimpickiego 1, Olsztyn10-699 Olsztyn, woj. warmińsko-mazurskie
Metraż
56.83
Typ
3P + A
Kondygnacja
PARTER

Ogródek/balkon
31.29
Komórka lokatorska
2.09
Cena mieszkania
591 032,00 PLN
Cena mieszkania za 1 m²
10 400,00 PLN
Komórka lokatorska
w cenie mieszkania
11-04-2025
591 032,00 PLN
Zestawienie powierzchni (m2)
1
PRZEDPOKÓJ
9.86
2
ŁAZIENKA
3.77
3
POKÓJ
10.14
4
POKÓJ
8.11
5
POKÓJ
8.11
O
OGRÓDEK ZIELONY
31.29
KL
KOM. LOK.
2.09
Prezentowane wyposażenie jest przykładowe i nie stanowi wyposażenia lokalu.

Pobierz prospekt informacyjny mieszkania
Prezentowane mieszkanie zostało wyróżnione na planie szarym kolorem.

Metraż
2.09
Koszt
w cenie mieszkania
Lokalizacja
podpiwniczenie

Zakup miejsca garażowego nie jest obligatoryjny.
Koszt
36 000,00 PLN
Metraż
22 m²
Lokalizacja
podpiwniczenie

Miejsca naziemne bezpłatne, ogólnodostępne tylko dla mieszkańców "Scacerowego Zacisza".

Magdalena Poniatowska
697 702 227
Kontakt do nas
Powierzchnia użytkowa mieszkań liczona w świetle ścian wyprawionych zgodnie z Polską Normą PN - ISO 9836:2015.
